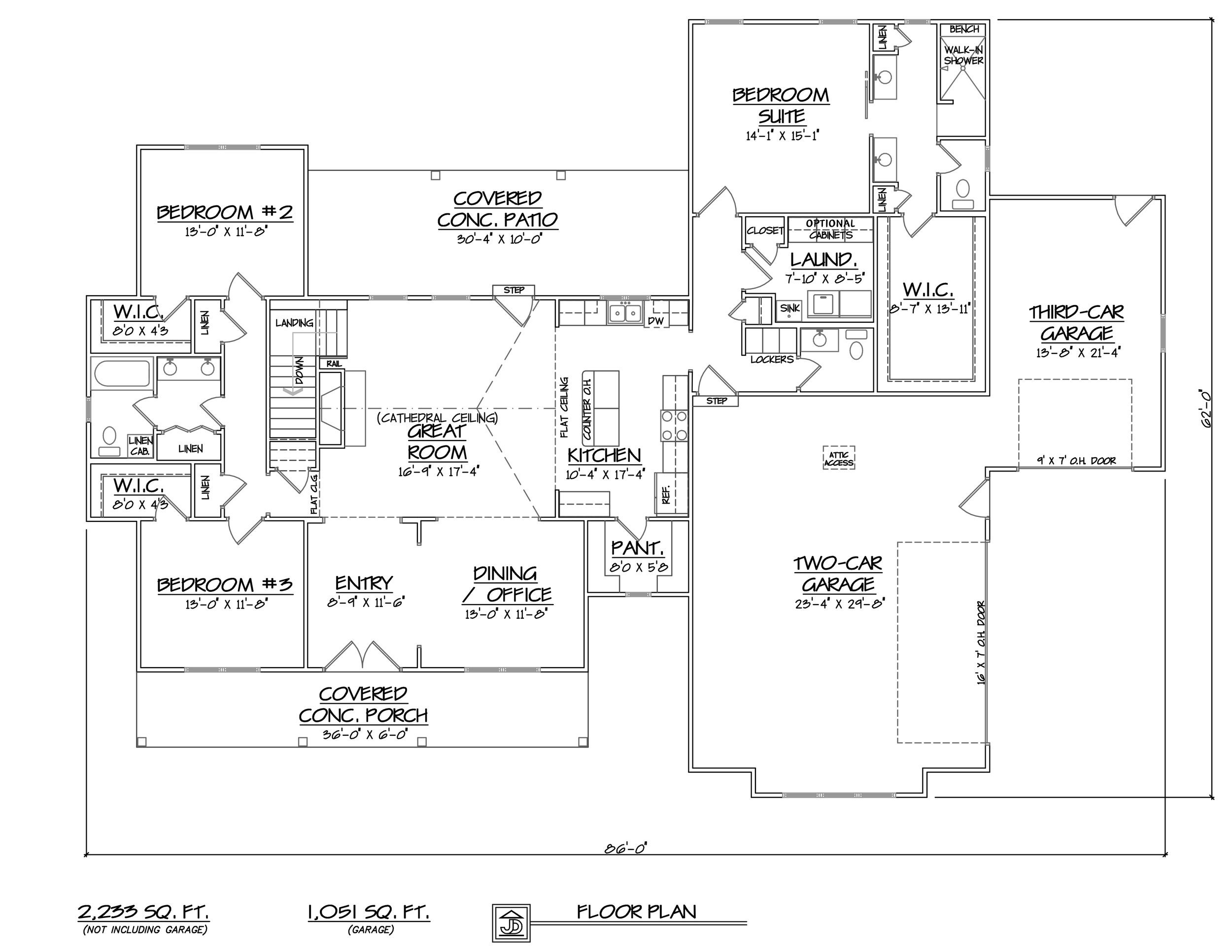
The Alta
2,233 Sq Ft | Ranch
Floor Plan
Features
Large master bathroom with dual vanities, tiled walk-in shower
2 massive, covered porches (Front/Back)
Oversized split 3 car garage
Open ranch floor plan
3 bedroom and 2.5 bathrooms
Office/dining/flex room

