The Edgewater
2,559 Sq Ft | Ranch
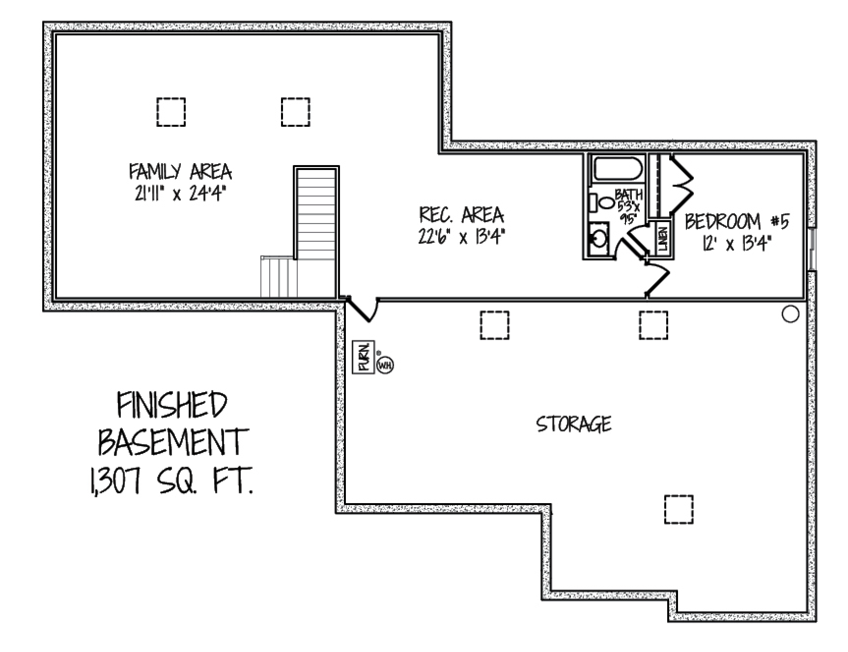
Floor Plan
Features
Open ranch floor plan
4 bedroom, 1 office, 2 ½ bathrooms
3 car oversized garage
Covered porch & covered patio
Large tiled walk-in shower

